
THE STORY: After a constant growth over the last 11 years, Patisserie Angelica decided to open a second store, a food/grocery as well as a place that offers breakfast/lunch to people interested. Like the cookies, the food will be made exclusively out of fresh ingredients, no conservants whatsoever. After all, they became liked for this specific aspect.
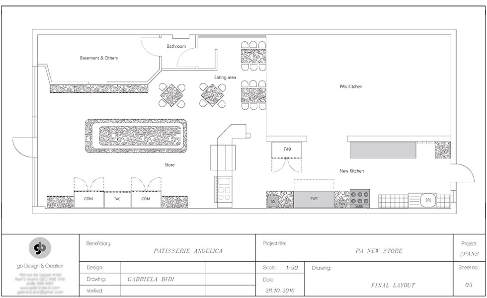
DESIGN & MAKE: The challenge, as before, was to make a new interior with minimal costs. (hand sketches, AUTOCAD).
WHAT’S IMPORTANT: Unfortunately, due to life-treathening medical reasons, the restaurant's ownners had to close down the place after exactly one year from the opening.